Servicios BIM en Revit para proyectos de arquitectura y construcción

En Hako Arquitectos ofrecemos servicios BIM para arquitectura, ingeniería y construcción. Nuestro equipo de profesionales trabaja con Revit para desarrollar modelos y documentación BIM detallados desde las etapas tempranas hasta la ejecutiva (LOD 100 a LOD 500).

Aplicamos procesos digitales que optimizan los recursos del proyecto, reducen errores en obra y permiten una mejor visualización y control de costos. Ya sea que necesites un modelo BIM para una vivienda, edificio, urbanismo o proyecto institucional, podemos apoyarte a actualizar o inciar tu proyecto desde cero.

Nuestro enfoque es la precisión, el detalle y la constante comunicación resolviendo las necesidades de cada cliente. Contáctanos para colaborar en tus proyectos de forma remota o presencial.


Cotiza Acá tu proyecto BIM !

servicios bim

¿Tienes archivos en Autocad, 2D o en físico y quieres llevarlo al siguiente nivel?
¿Necesitas la documentación BIM de tu proyecto?

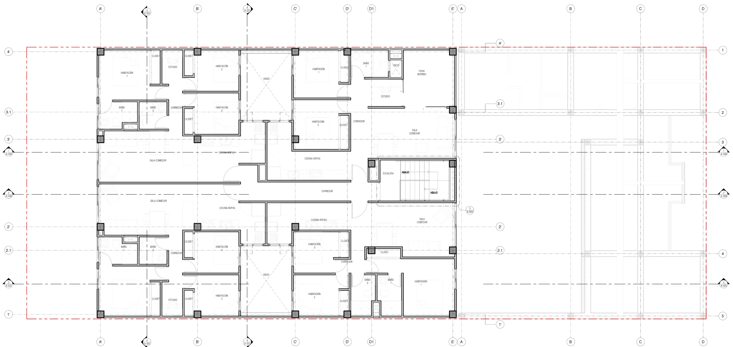
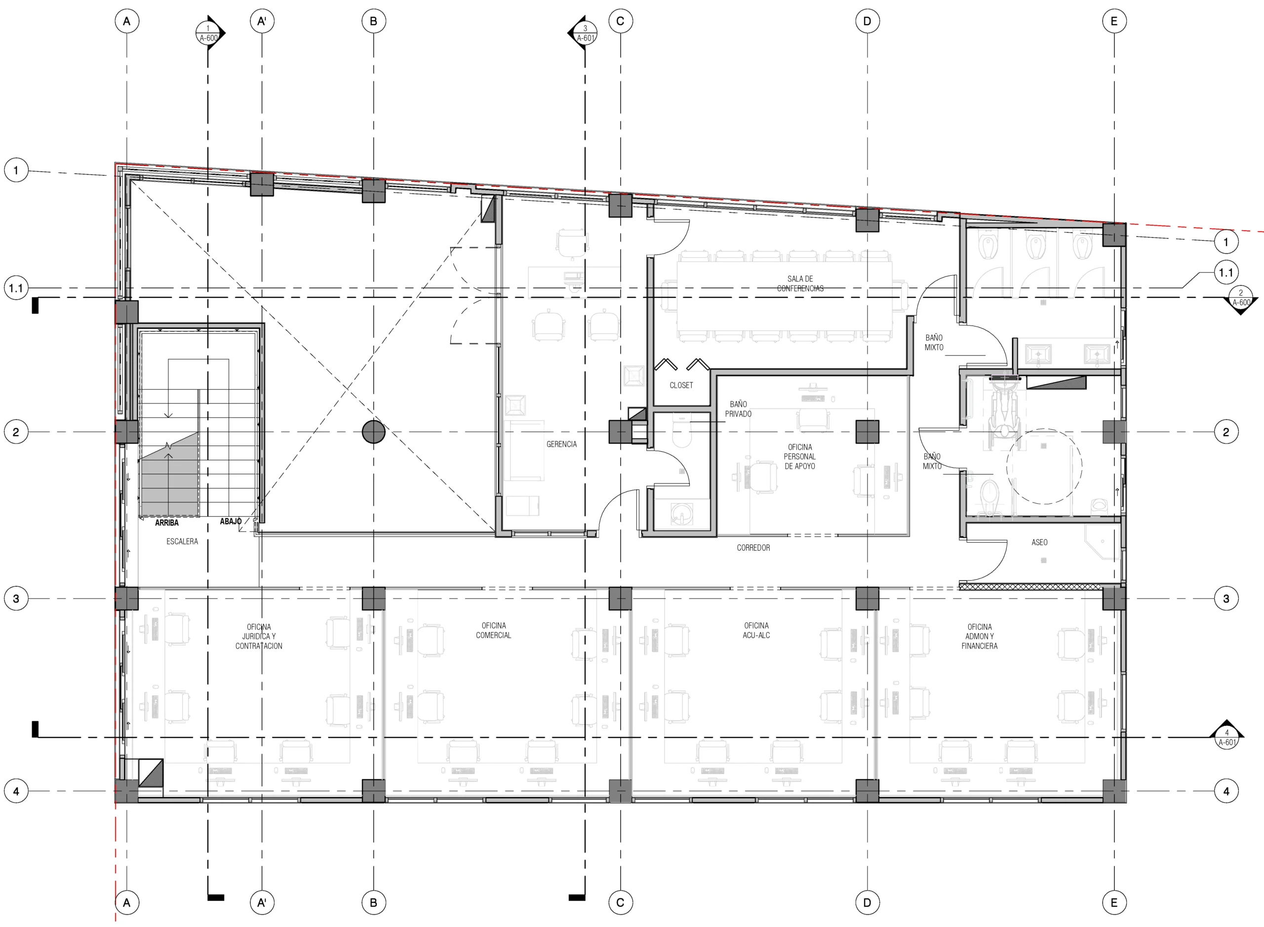
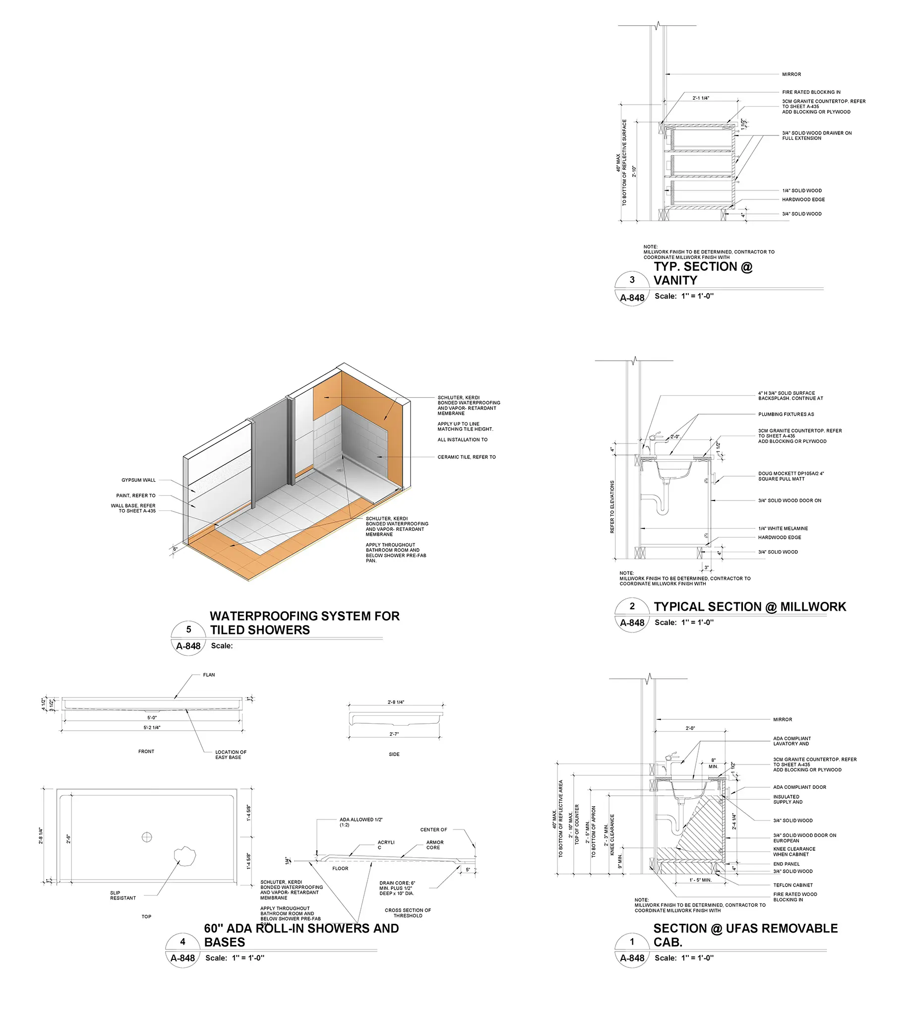
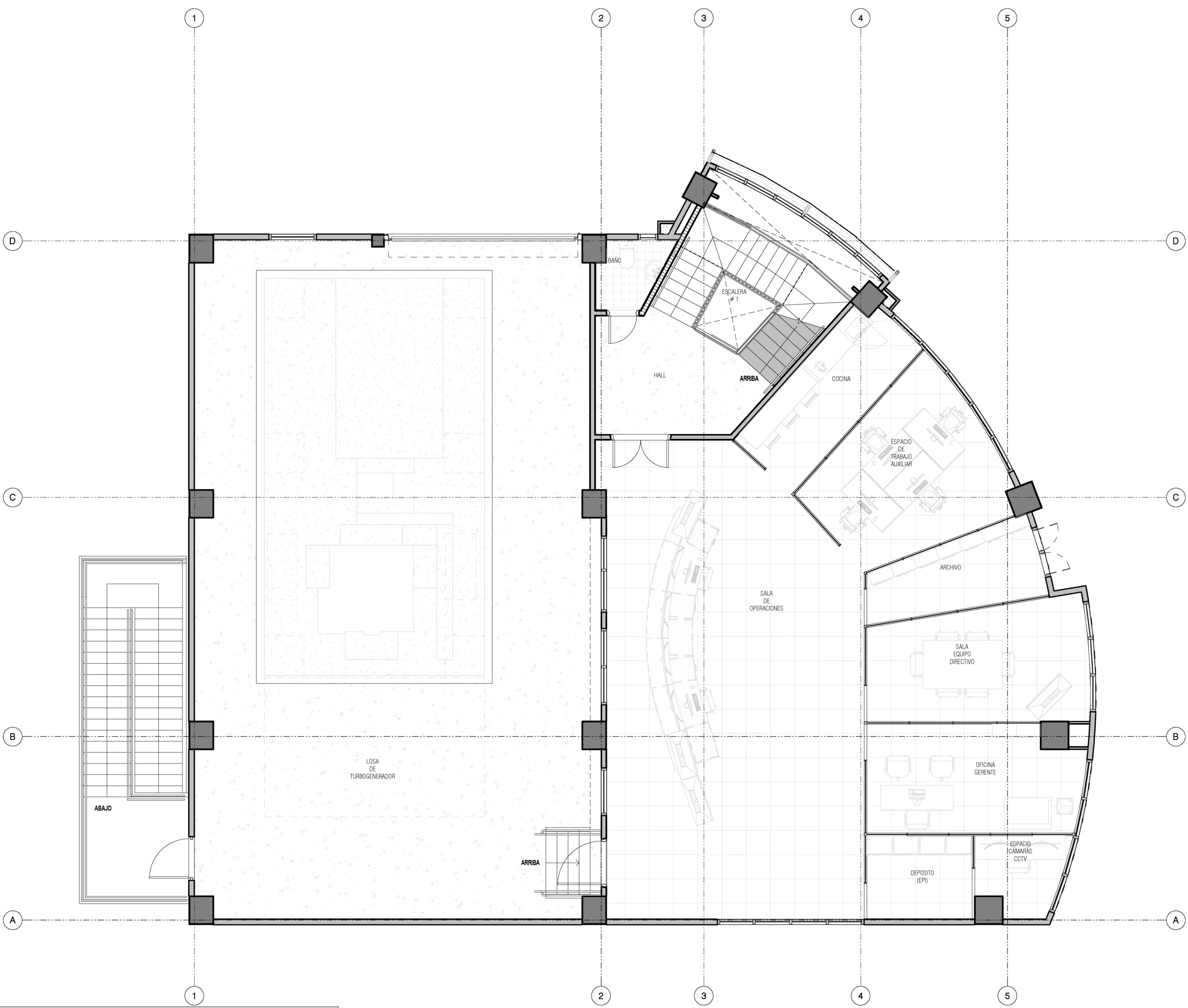
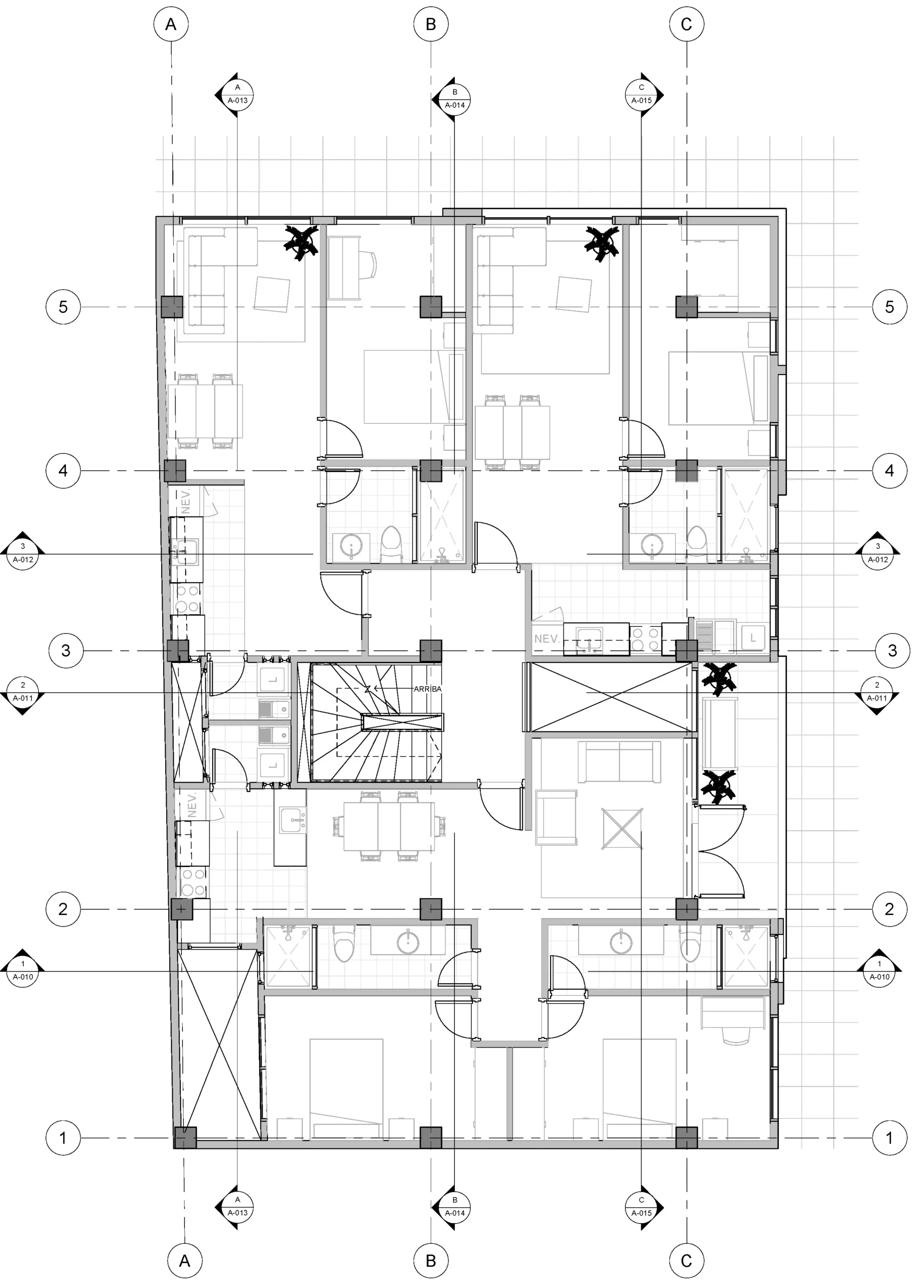
En Hako, digitalizamos tu proyecto a BIM, utilizando modelado detallado y parametrizado en revit. Esto nos permite generar presupuestos precisos, generar planos detallados para construcción y además incorporar sistemas MEP (Mecánicos, Eléctricos y de Fontanería) en tu diseño.

Si adicionalmente a nuestros servicios BIM necesitas diseñar tu espacio haz click para Arquitectura o Diseño de interiores.

Nivel de detalle (lod)

Dentro de nuestro servicio de documentación BIM existen distintos niveles de desarrollo (LOD), adaptándonos a las necesidades de cada fase del proyecto.

Desde los primeros bocetos conceptuales hasta la documentación detallada para construcción y mantenimiento, trabajamos con estándares internacionales que garantizan precisión y claridad.

Manejamos el modelado desde LOD 100 (conceptual), ideal para estudios de masa y análisis preliminares, pasando por LOD 200 (diseño esquemático) y LOD 300 (documentación de construcción), donde se definen dimensiones reales, materiales y relaciones geométricas exactas.

Para etapas más avanzadas, desarrollamos modelos en LOD 400, que permiten prefabricación y coordinación con ingeniería y obra. También generamos entregables en LOD 500, destinados al mantenimiento y gestión de activos en etapa operativa.

PREGUNTAS FRECUNTES SOBRE BIM EN ARQUITECTURA.

¿Qué es BIM?

Building Information Modeling o BIM por sus siglas en inglés, es un sistema de creación de proyectos inteligente que integra diferentes disciplinas relacionadas a la construcción. Los proyectos BIM permiten la obtención de datos para construcción, modelado 3d, generación de planimetría de alta calidad y gestión de tu proyecto de una manera dinámica y eficiente.

¿Qué beneficios tiene hacer mi proyecto en Bim con revit?

En hako arquitectos ofrecemos el servicios BIM en Bogotá y Colombia , convirtiendo tu proyecto a BIM aprovechando al máximo sus beneficios, disminuyendo tiempos de diseño, mejorando el trabajo interdisciplinar y optimizando la gestión de tu proyecto en sus diferentes fases de diseño hasta su construcción.

¿Cuál es la diferencia entre AutoCAD y Revit?

Si bien los dos softwares tienen un enfoque similar, autocad se centra la creación de planimetría de diferentes tipos y Revit tiene un enfoque mas holístico enfocado a la arquitectura y construcción. Así que el Modelado BIM resuelve si solo requieres planimetría básica y modelo 3D de una edificación hasta la documentación BIM con Planimetría detallada, detalles constructivos, redes, cantidades y presupuestos.

Con Revit además de generar planos de casas, edificios o cualquier tipo de edificación, su capacidad de obtener datos del modelo 3d, facilidad de modificación y gestión de proyectos, el modelado BIM se convierte en la mejor opción para la creación de proyectos arquitectónicos.

faq

¿Cuánto cuesta el modelado en Revit / BIM en Colombia?

El costo de un modelo revit va depender de la complejidad del proyecto, m2 (metros cuadrados), número de pisos , nivel de detalle ( LOD) y MEP . Para saber el costo de convertir tu proyecto a Revit contáctanos y resolveremos tus dudas.

¿Ofrecen servicios BIM en Bogotá?

Hako arquitectos ofrece los servicios de Modelado BIM y documentación BIM en Bogotá y en Colombia general. La versatilidad y compatibilidad de Revit para el trabajo remoto hacen que el trabajo a distancia sea colaborativo y eficiente. Ya sea que requieras un modelado BIM arquitectura o la documentación BIM detallada.

¿Puedo contratar servicios BIM desde el extranjero?

En Hako arquitectos tenemos experiencia en documentación BIM, trabajo colaborativo y remoto con proyectos en diferentes países, así que puedes contactarnos desde cualquier parte del mundo y convertiremos tu proyecto a la metodología BIM.


Contáctanos para obtener más información y cotizar tu proyecto en Hako Arquitectos con BIM arquitectura.